31
$550,000 Sale
Listed 4 hours ago
7204 Dunwaters Road
· 2
· 2.0
· 3
· 1242
Key Facts
Key facts for 7204 Dunwaters Road
Property Type
House, House
Parking
Garage: Yes, 3 parking
MLS #
10364609
Size
1242 sqft
Basement
Crawl space, Partial
Listed on
-
Lot size
-
Tax
-
Days on Market
-
Year Built
1999
Maintenance Fee
-
Description
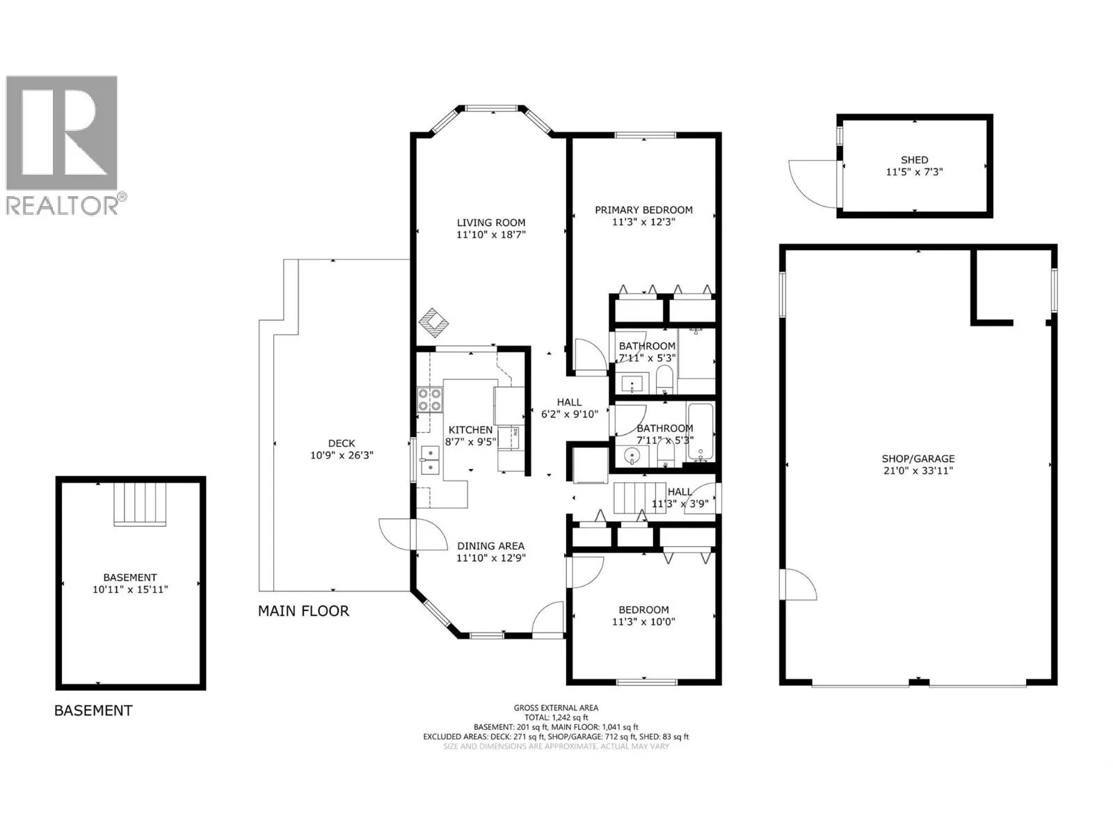
HUGE SHOP! If that got your attention, then this rancher style home with 21’x34’ detached shop located in Fintry is for you. Escape the hustle and settle into nature with this 2 bedroom, 2 bathroom home tucked away on .33 of an acre of fully fenced treed land, offering 1,242 sq ft of comfortable liv...ing space and stunning views overlooking the lake and surrounding wilderness. Perfectly positioned for privacy and tranquility, this property is ideal for those who crave a quieter, more connected lifestyle. The open concept layout inside feels bright and welcoming, with large windows that bring the outdoors in and frame the peaceful, lake and forest views. The kitchen hosts newer stainless steel appliances and a specious breakfast nook, with peek-a-boo window into the cozy livingroom that features a beautiful wood burning stove. Both bedrooms are well-sized, and the primary features its own recently updated bathroom with steam shower for added comfort. Outside, you'll find plenty of space to roam in your fully fenced yard to play, relax, or garden under a canopy of mature trees. The detached shop with 240v power provides tons of room for parking, projects, storage, or outdoor gear, and the driveway offers ample RV and extra parking for all your vehicles, toys, or visiting friends. Whether you're looking for a full-time home in the woods or a weekend getaway surrounded by nature, this property is one you have to see in person to fully appreciate! (id:10452)
Similar Properties (No results)
Room Types
3pc Ensuite bath
-
Dimensions 7'11'' x 5'3''
41.56 sqft
4pc Bathroom
-
Dimensions 7'11'' x 5'3''
41.56 sqft
Bedroom
-
Dimensions 11'3'' x 10'0''
112.5 sqft
Listing courtesy of: Coldwell Banker Executives Realty
This REALTOR.ca listing content is owned and licensed by REALTOR® members of The Canadian Real Estate Association.